Pagrindinės savybės:
-
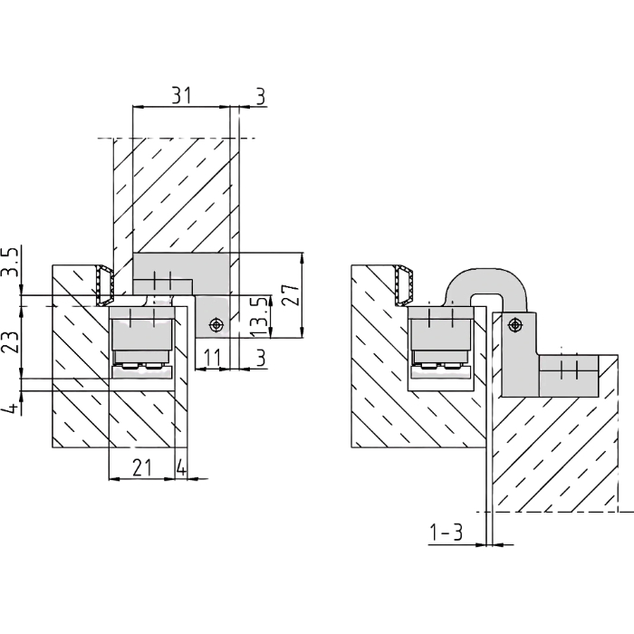
Paslėpti vyriai užlaidinėms vidaus durims iš medžio masyvo ar plokštės.
-
Tinka tiek privačiam būstui, tiek komerciniams objektams (biurai, viešbučiai, studijos, salonai).
-
Galimybė naudoti su medinėmis, plieno ar aliuminio staktomis (su atitinkamais montavimo elementais).
-
Vienas modelis tinka kairėms ir dešinėms durims – paprastesnis sandėlio ir užsakymų valdymas.
- Vyriai turi magnetines plokšteles, kurios paslepia montavimo varžtus.
-
Iki 180° atsidarymas – durys gali pilnai atsiverti be kliūčių prie sienos ar baldų.
- Guoliai: savitepiai, nereikalaujantys priežiūros – tylus ir sklandus darbas daugelį metų.
- Klasifikuojami iki 80 kg durų svorio, todėl saugiai tinka kokybiškoms, sunkesnėms vidaus durims.
-
Korozijos atsparumo klasė 3 – patikimas darbas ilgu laikotarpiu įprastose ir intensyvesnėse vidaus sąlygose.







